About Us

   GO TO OUR NEW WEBSITE!


Archive
h
   Freda
e
   Simon
e
   Schools

Contact us







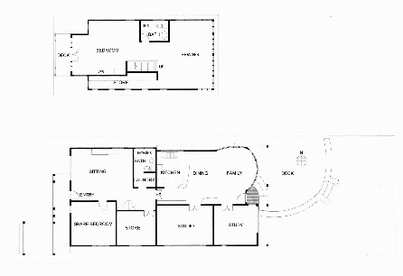
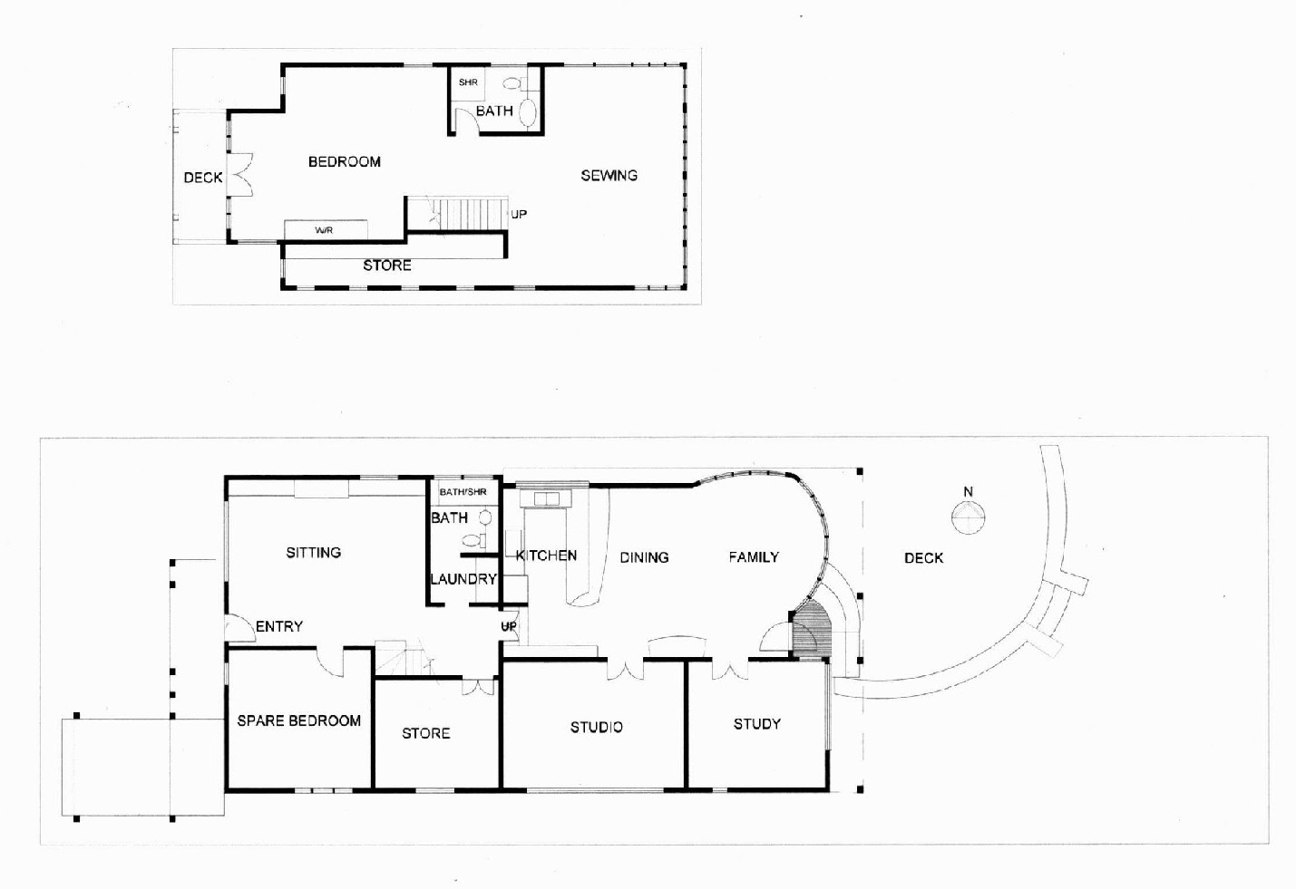
The Contemplative House

 

<<Back to Project List <<Back