About Us

   GO TO OUR NEW WEBSITE!


Archive
h
   Freda
e
   Simon
e
       Theory
e
             Fiction Architecture

e

   Schools

Contact us



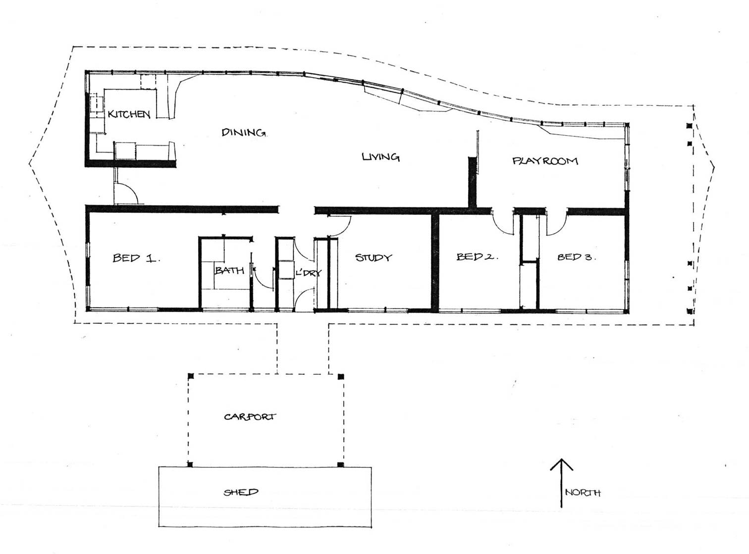
The Red Vineyard House

<<Back to Project List
<<Back